Floorplan for Radstock, Somerset

3 Bedrooms Semi Detached House - For Sale Ston Easton, Radstock, Somerset
Asking Price £500,000

3 1

A partially converted former stables and coach house of traditional stone construction with an expansive former kitchen garden, set in a private rural position. The property offers considerable scope for improvement and reconfiguration, subject to the necessary planning consents.

Key Features

  • Planning permission was granted in 2021 under application reference 2021/2535/FUL for the conversion of the property to a dwelling.
About the Property.

The Hayloft, formerly the stables and coach house associated with Clare Hall, is a substantial stone building set within a private rural setting, enjoying a strong sense of seclusion. The main building provides a rare opportunity to create an attractive and substantial dwelling. To the rear of the property is a former kitchen garden enclosed by a brick wall and a shared access leads to the property through formal gates from the A37.

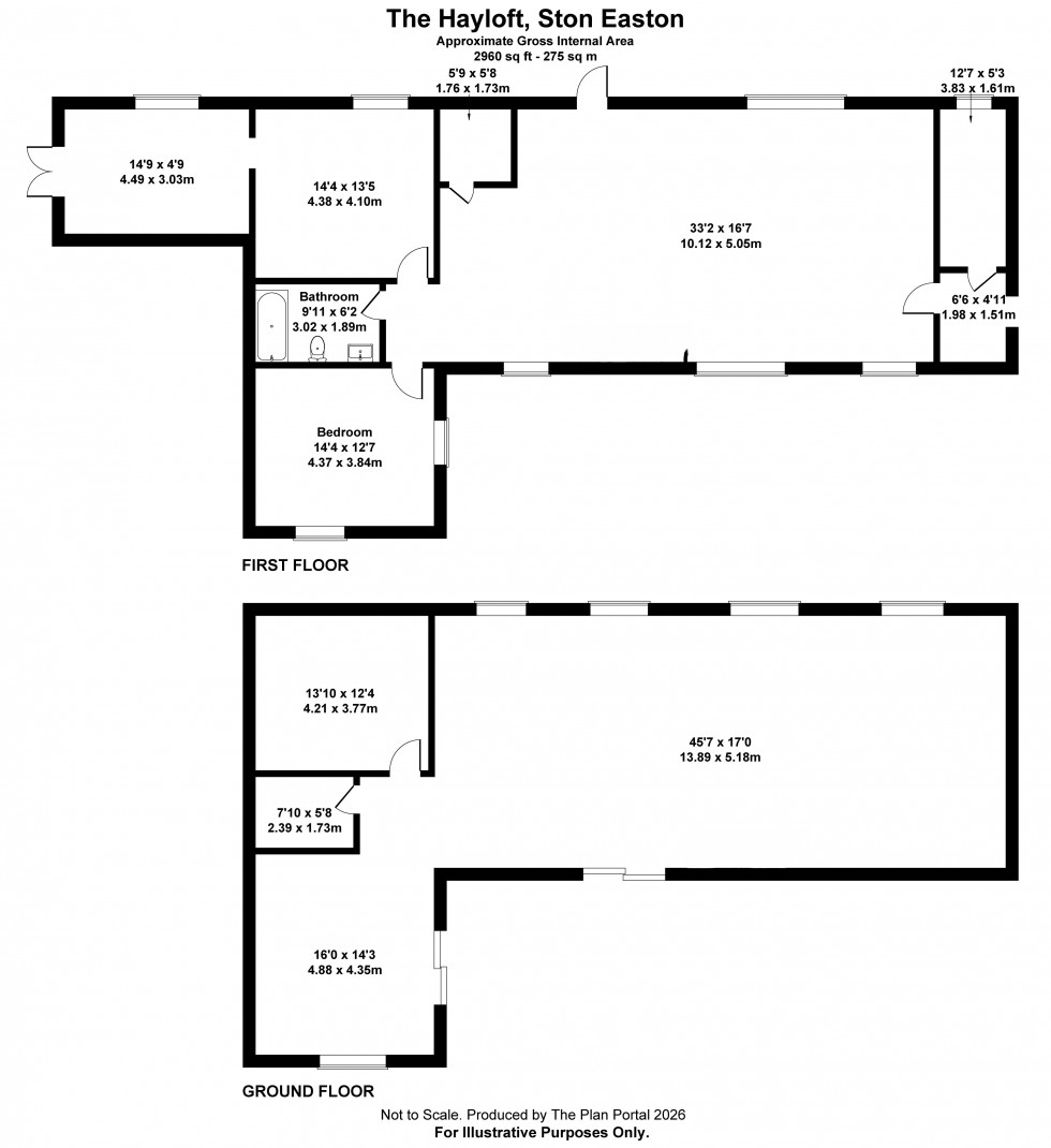
About the Inside.

To the front of the property is a cobbled yard from which there is access to the main building. The first floor is already in established residential use and comprises a generous principal living room, a well-proportioned bedroom, a bathroom, a smaller sitting room and an adjoining conservatory. The accommodation is characterised by good ceiling heights, exposed structural elements and attractive outlooks over the surrounding countryside, providing comfortable and functional living space in its current form.

At ground floor level, the accommodation beneath comprises the former stables and coach house, with a series of sizeable rooms and ancillary areas reflecting the building’s historical origins. These spaces offer clear scope for improvement and potential expansion of the residential accommodation. The scale, footprint and configuration of the ground floor present an opportunity to significantly enhance and reconfigure the overall accommodation.

About the Outside.

The property is approached via a shared gated stone entrance, leading to a shared driveway which provides access to the property. Beyond the yard lies the walled former kitchen garden. This area offers a high degree of privacy and presents clear scope for landscaping and reinstatement as a garden space

About the Area.

Ston Easton sits on the Mendip Plateau some 13 miles south of Bath and Bristol and 7 miles north east of Wells. It benefits from a strong community with an active village hall and church. Chewton Mendip is nearby and provides a good range of facilities including an excellent primary school, pre-school, village shop, village hall, church and two public houses.

The Cathedral City of Wells, which is the smallest in England, offers a range of shopping facilities including a high proportion of independent shops and boutiques, banks, restaurants, public houses, cinema and churches. The stunning market square holds a farmer’s market every Wednesday and Saturday.

Mainline rail services to London Paddington are available from Bath, Bristol and Castle Cary. Bristol Airport is 14 miles away. There is a wide range of good schools nearby in both the public and private sectors. Ston Easton is within the catchment of Wells Blue School and private schools locally include Wells Cathedral (a specialist music school) Downside and Millfield.

Planning.

Planning permission was granted in 2021 under application reference 2021/2535/FUL for the conversion of the property to a dwelling. While purchasers are advised to make their own enquiries as to the current status and implementation of the consent, this approval demonstrates the building’s adaptability and highlights the longer-term potential of the property.

Directions.

Coming from Wells, follow the A39 to Rush Hill, approximately 7.5 miles. Turn right onto A37 and follow the road for roughly half a mile. The entrance to the property will be on your right-hand side on the bend. Coming from the Bristol Bath direction, follow the A37 all the way into Ston Easton, and the property will be on your right-hand side on the bend.

Useful Information

Postcode – BA3 4DE
Local Authority – Somerset Council
Council Tax - G
Energy Performance Certificate Rating – N/A
Tenure – Freehold
Servies – Mains water, electricity, drainage
What3words – ///kindness.unsettled.country
Viewings - Strictly by appointment with the vendors agent Killens, t: 01749 671172

Location

Similar Properties