Floorplan for Midford, Bath, Somerset

3 Bedrooms Detached House - For Sale Midford Road, Midford, Bath
Asking Price £1,100,000

3

Castle Farm occupies a commanding elevated position located in the south of the Cotswolds National Landscape. The newly built farmhouse provides a well-designed family home configured across three floors. Subject to an Agricultural Occupancy Condition

About the Property & Local Area.

Castle Farm occupies a commanding elevated position located in the south of the Cotswolds National Landscape. The newly built farmhouse provides a well-designed family home configured across three floors. It is subject to an agricultural occupancy condition. The property is extremely well located to access an extensive range of business and recreational facilities in both Bath and Bristol.

Schooling: Within the local there is an abundance of excellent private and public schooling for boys and girls of all ages. Prior Park and Monkton Combe are within 5 minutes’ drive with Kingswood, King Edward’s, the Royal High School for Girls all being within easy reach. Within driving distance are Badminton, Downside, Millfield, Stonar and Wells Cathedral.

Sporting: There are several golf courses nearby in addition to other excellent sporting facilities in Bristol and Bath including cricket, rugby, and racing within a short drive.

Attractions: The City of Bath provides excellent first-class shopping, educational and cultural attractions including the Roman Baths, Holbourne Museum, The Royal Crescent, Prior Park Gardens and the Theatre Royal as well as numerous restaurants, bars and entertainment venues.

Trains: Excellent rail services from Bath Spa with trains to London Paddington taking from 75 minutes.

Airports: Bristol Airport is approximately 19 miles away offering extensive national and international flights.

Motorway: Straight-forward access to the national motorway network with the M4 (Junction 18) being 15 miles away.
About the Inside.

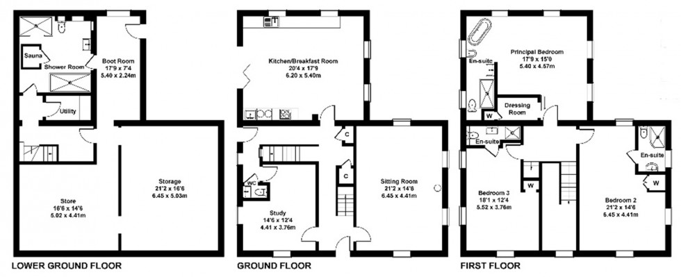
As you come through the front door you are welcomed with a well-lit entrance hall which leads you to the sitting room, which has flagstone flooring, a wood burning stove and fantastic views over the valley. The ground floor is completed with a very useful and spacious cloakroom/study, with plenty of natural light, as well as a beautiful bright kitchen, with a range cooker and AGA. The majority of the light comes from the large bi-fold doors that lead from the kitchen to the garden.

The first floor provides ample living space with three large double bedrooms all fitted with en-suite showers, as well as a bath in the master bedroom. The master bedroom also comes fitted with a walk-in wardrobe. All three bedrooms have plenty of natural light and fantastic far-reaching views.

There is an attic which has been boarded and creates an excellent storage facility. The lower ground floor includes a wonderful walk-in shower and spa facility, including a sauna and steam room. There is a boot room attached.

Additionally, there are two large storage rooms on the lower ground floor, which could be converted into further accommodation if required.

About the Outside.

The farmhouse is approached along a gravel driveway providing ample parking, with surrounding gardens featuring extensive areas of well-kept lawn, a productive kitchen garden, a covered barbecue area, a log store beneath a tiled roof, and a patio ideal for alfresco dining and entertaining.
The property enjoys an idyllic rural setting on the southern edge of the Cotswolds Area of Outstanding Natural Beauty, perfectly positioned for those who appreciate outdoor pursuits, with an abundance of scenic walking and cycling routes nearby.

Directions.

From Bath city centre, take Churchill Bridge south and at the roundabout, take the second exit onto A37/Wells Road. Continue on the A368 for approximately 1.5 miles, then turn left onto the B3110/Midford Road. At the two consecutive roundabouts take the first exit followed by the second, to stay on the Midford Road. Continue on Midford Road for roughly 0.5 miles and the property will be signposted on your left.

Useful Information.

Postcode – BA2 7PU
Local Authority – Bath and North East Somerset Council
Council Tax - G
Energy Performance Certificate Rating – tbc
Tenure – Freehold
Servies – Mains water & electricity. Private drainage.
What3words – ///owners.purple.hero
Viewings - Strictly by appointment with the vendors agent Killens, telephone 01275 333993

Location