UNDEROFFER
UNDEROFFER
UNDEROFFER
UNDEROFFER
Floorplan for Bishop Sutton, Bristol, Somerset Floorplan for Bishop Sutton, Bristol, Somerset

Commercial - Under Offer Stowey, Bishop Sutton, Bristol
Asking Price £350,000

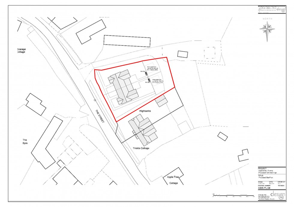
An attractive site situated within the village of Stowey, benefiting from permission in principle for two semi-detached dwellings, with pre-application advice also supporting the option for one larger single dwelling. The grounds extend to approximately 0.27 acres (0.11 ha) and enjoy an appealing...

Key Features

  • Attractive site within the village of Stowey
  • Permission in principle for two semi-detached dwellings
  • Pre-application advice also supporting one large dwelling
  • Grounds extending to 0.27 acres (0.11ha)
  • Attractive rural setting
  • Close to Bishop Sutton, Bristol and Bath
Description.

This attractive development site is set in the heart of the village of Stowey, a highly sought-after village within the Chew Valley. The site benefits from planning permission in principle for two semi-detached dwellings and pre-application advice confirming that a single larger dwelling would be allowed. The sale of this site offers an excellent opportunity to design and build two houses or a single home within a generous and private setting.

The plot comprises level garden ground bordered mainly by established hedging with access by way of a trackway leading from The Street.

Stowey is a small, unspoilt village in the Chew Valley, Somerset, offering tranquil rural living within easy reach of Bristol and Bath. Set amid rolling countryside near Chew Valley Lake and the Mendip Hills, it features traditional stone buildings, a 15th-century parish church, and proximity to historic Sutton Court. The village forms part of the Stowey Sutton parish with nearby Bishop Sutton and other valley settlements provide everyday amenities, schooling and services. Attractive landscapes, good commuter access, and plentiful outdoor leisure opportunities make Stowey a desirable location for families and professionals seeking a countryside lifestyle with convenient connectivity.

Planning.

Planning permission was granted on 31/7/2025. Further details regarding the planning consent are available from the selling agent or can be found via the BANES Council online Planning Portal using reference 25/00872/PIP. In November 2025, BANES provided pre-application advice confirming that “a single dwelling instead of the 2no. approved dwellings is likely to be supported in principle”.

Services.

Mains services are understood to be available in the locality. Prospective purchasers must make their own enquiries as to the location and capacity of any services.

Designations.

The property is not within any Housing Development Boundaries or a Conservation area but is within the Bristol & Bath Green Belt. It is within Flood Zone 1 and shown to be at low risk of flooding.

Rights of Way, Easements etc.

The property benefits from a right of way leading from The Street. The site is not crossed by any footpaths and is not believed to be affected by any private rights of way or similar matters. The property is however offered for sale subject to and with the benefit of all matters contained in or referred to in the property charges register of the registered title together with all public and private rights of way, wayleaves, easements and other rights of way whether these are specifically referred to or not.

Directions.

From Bath, take the A368 towards Weston-Super-Mare. Continue through Chelwood proceeding over the roundabout at the junction with the A37. Follow the A368 for 1½ miles and then turn left into The Street. The site will be found on the left after 250 metres.

From Chew Magna, follow Moorledge Road towards Bishop Sutton and join the A368. Turn right onto the A368 and then turn left into The Street.

Tenure.

Freehold with vacant possession.

What3words.

///fussy.wash.absent

Postcode.

BS39 5TH

Restrictive Covenant/Development Clawback.

The property is not subject to a restrictive covenant or development clawback/uplift clause.

Local Authorities.

Bath and North East Somerset Council

Viewings.

Viewing is strictly by appointment the selling agents, Killens - office@killens.org.uk.

Location

Similar Properties