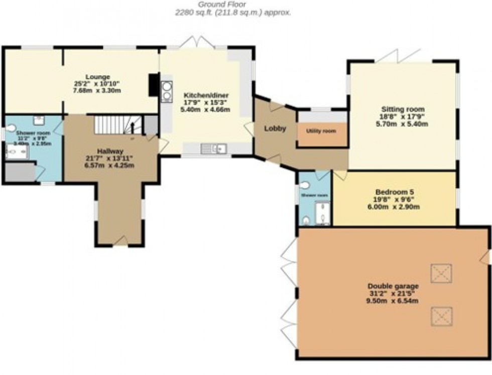
Floorplan for Keynsham, Bristol, Somerset Floorplan for Keynsham, Bristol, Somerset Floorplan for Keynsham, Bristol, Somerset

4 Bedrooms Detached House - For Sale Queen Charlton, Keynsham, Bristol
Asking Price £1,600,000

4

Set in the attractive and popular village of Queen Charlton, a substantial five bedroom home set in extensive gardens and grounds. In total, about 3.56 acres.

Key Features

  • Substantial five bedroom house
  • Extensive gardens and grounds
  • Barn with permission to convert to 3000 sq.ft. dwelling
  • Land and paddocks
  • Close to Keynsham, Bristol and Bath
  • Within an attractive and popular village
An exceptional opportunity to acquire a charming and versatile five-bedroom home set within approximately 3 acres of beautifully landscaped gardens and grounds, nestled in the heart of the highly sought-after village of Queen Charlton.

In total, about 3.56 acres.

About the property.

Church Farm Cottage is a delightful stone-built detached residence, full of character and offering flexible accommodation ideal for family living, homeworking or guest lodging. The property comprises a four-bedroom main house and a one-bedroom annexe, seamlessly integrated yet offering private access. This charming home is situated on a peaceful no-through lane, providing a tranquil rural setting with excellent links to both Bath and Bristol.

About the inside.

Upon entering, you are welcomed by a spacious entrance hall, currently used as a study, with a stylish wet room to one side. The characterful sitting room at the rear of the cottage enjoys garden views and leads into a generous dual-aspect kitchen/breakfast room. This well-equipped space features a traditional Aga, exposed timber beams, and French doors opening onto the terrace — perfect for family gatherings and entertaining.

A practical utility room sits off the inner hall, connecting to the one-bedroom annexe. This separate living space includes a bright and airy lounge with terrace access, a sizeable double bedroom showcasing exposed stonework, and a modern shower room. There is also potential to add a kitchen, creating an independent living unit.

Upstairs, the main house offers four well-proportioned bedrooms, including a principal suite with en-suite shower room, along with a contemporary family bathroom. A spiral staircase leads to a top-floor occasional room — ideal as a fifth bedroom, studio, or hobby space — with potential for its own en-suite.

About the outside.

Approached via electric gates, the property offers a gravel driveway with ample parking and a double garage. A second, private driveway provides independent access to the annexe if required.

The meticulously landscaped rear garden is a true highlight — featuring a large stone terrace ideal for al fresco dining, a built-in BBQ area, and extensive lawns bordered by mature trees and planting. A summer house and two further outbuildings offer additional storage or hobby space.

Beyond the formal garden, the grounds open up to a gently sloping field dotted with specimen trees and enjoying far-reaching rural views. In total, the grounds extend to approximately 3 acres.

About the Area.

Queen Charlton is a delightful and quiet village situated in the North Somerset countryside with traffic access restricted. Whilst being away from main roads, there is good access to the A37 and A4. The centre of Bristol is only a few miles away and there is an excellent network of lanes, footpaths and cycleways in the locality. Whilst there are limited facilities within the village, the centres of Whitchurch and Keynsham are nearby. There is a strong community in the village with a renowned annual village fete.

Directions.

From the centre of Queen Charlton, proceed north eastwards along a no through road and Church Farm Cottage will be found on the right after 200 metres. A separate lane/track leads from the centre of the village to the land as shown on the sale plan. The land also adjoins Queen Charlton Lane which leads to the village from Charlton Road.

Viewings.

Viewing by appointment with the selling agents, Killens chewmagna@killens.org.uk

Rights of Way, Easements etc.
The property is not affected by footpaths or by any other similar matters. The property is sold however subject to all rights including rights of way whether public or private, light, support, drainage, water and electricity supplies and other rights, covenants, agreements and all existing and proposed wayleaves, masts, pylons, stays, cables, drains and water, gas or other pipes whether referred to in these particulars or not.

Useful Information.

Postcode – BS31 2SQ

Local Authority – Bath and North East Somerset Council

Tenure – Freehold

What3words – ///folds.navy.zones

Council Tax – Band G

EPC Rating – D

Identity verification - Please note, Killens LLP are obligated by law to undertake Anti Money Laundering (AML) Regulations checks on any purchaser who has an offer accepted on a property. We are required to use a specialist third party service to verify your identity. The cost of these checks is £18 inc. VAT per person. This is payable at the point an offer is accepted, and our purchaser information form is completed, prior to issuing Memorandum of Sales to both parties respective conveyancing solicitors.

Location