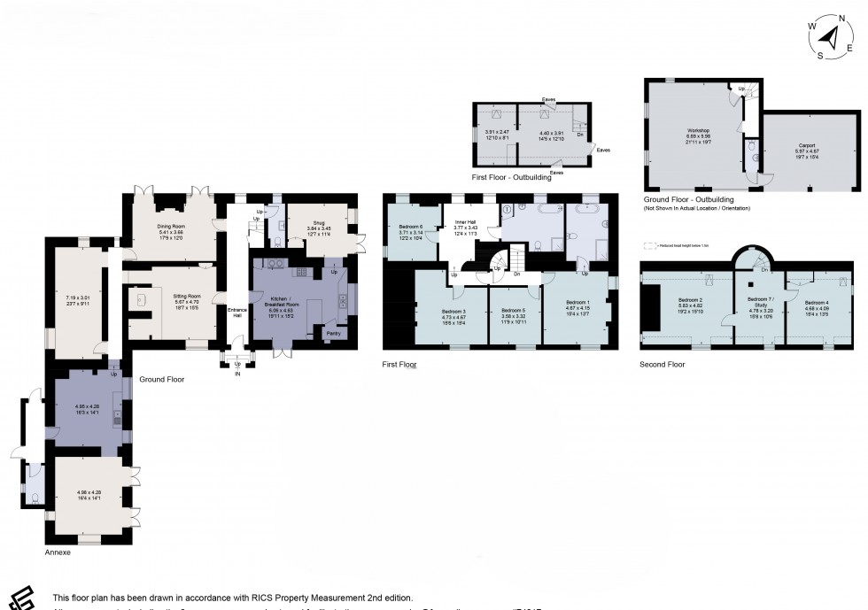
Floorplan for Chew Magna, Bristol, Somerset
EPC Graph for Chew Magna, Bristol, Somerset

6 Bedrooms Detached House - For Sale Moorledge Lane, Chew Magna, Bristol
Asking Price £1,600,000

6 2 3

Moorledge Farm is a beautifully preserved 17th-century English farmhouse nestled in the picturesque Chew Valley, offering peace, privacy, and quintessential countryside living. Surrounded by rolling hills, landscaped gardens, and open fields, the property enjoys a discreet and idyllic setting at...

Key Features

  • Charming detached country home with scenic countryside views
  • Spacious farmhouse-style kitchen with breakfast area
  • Three elegant reception rooms ideal for family living and entertaining
  • Six well-proportioned bedrooms, plus a study or potential seventh bedroom
  • Two bathrooms offering ample family accommodation
  • Attached annexe wing with scope for conversion (subject to planning)
  • Double carport with adjacent workshop
  • Set in generous grounds extending to approximately 1.087 acres
  • Additional land and stables available by separate negotiation
A Timeless English Farmhouse with Exceptional Character, Glorious Gardens & Approved Annexe Plans in the Heart of the Chew Valley

The Property

Dating back to 1665, the farmhouse features a charming mellow stone façade and unmistakable curb appeal. Inside, the home exudes period charm with flagstone floors, exposed beams, inglenook fireplaces, and a welcoming layout that blends formal and informal living spaces.

A central entrance hallway leads to two generous reception rooms: a characterful drawing room with a wood-burning stove set within a deep-set inglenook, and a dining room ideal for entertaining, complete with an open fireplace and garden access via double doors.

The heart of the home is a large, traditional farmhouse kitchen featuring an oil-fired Aga, electric oven with ceramic hob, original display cabinet, and walk-in larder. Adjacent is a cosy snug with dual-aspect views over the garden, offering the perfect space for relaxing.

Accommodation
Spread over three floors, the property offers six double bedrooms. The first floor includes four doubles, including a principal suite with a spacious en suite bathroom featuring a walk-in shower and freestanding Victorian-style tub. A second family bathroom, also with a roll-top bath, serves the remaining bedrooms.

The top floor offers two further bedrooms and a charming central seating area with vaulted ceilings and exposed beams—ideal for a private office, teenage retreat, or creative studio.

Outbuildings & Potential
A significant highlight is the adjoining coach house with approved planning (Ref: 00/00107/FUL) to create a generous two-storey annexe perfect for extended family, guest accommodation, or rental potential.

An oak-framed car barn sits at the front of the property, providing covered parking and workshop space. Part of the barn has already been converted by the current owners into a studio/workshop, with excellent potential for a home office or gym.

To the rear, a paddock with stables and a barn may be available via separate negotiation, further enhancing the lifestyle potential of this unique home.

Gardens & Grounds
The gardens are a true delight meticulously landscaped with deep borders, ornamental trees, expansive lawns, and tranquil seating areas. To the front, a private walled garden with a historic well creates an intimate outdoor space, while the main garden to the rear backs onto open countryside, offering far-reaching rural views and complete privacy.

Location
Located just outside the highly sought-after village of Chew Magna, Moorledge Farm sits within the stunning Chew Valley and the Mendip Hills AONB. The village offers a wide range of amenities including independent shops, pubs, restaurants, and excellent schools.

Bristol (8 miles) and Bath (11 miles) are easily accessible, as are Bristol Airport, major motorway links (M4/M5), and mainline rail services. The surrounding area is a haven for outdoor enthusiasts, with nearby lakes, trails, and scenic countryside offering endless recreational opportunities.

Useful Information

Postcode - BS40 8TL
Local Authority - BANES
Council Tax- F
Services - Mains Electricity, Mains Water, Oil & Private Drainage (Septic tank)
Energy Performance Certificate Rating - E
Tenure - Freehold
Viewings - Strictly by appointment with the Vendors agent Killens

Identity verification - Please note, Killens LLP are obligated by law to undertake Anti Money Laundering (AML) Regulations checks on any purchaser who has an offer accepted on a property. We are required to use a specialist third party service to verify your identity. The cost of these checks is £18 inc. VAT per person. This is payable at the point an offer is accepted, and our purchaser information form is completed, prior to issuing Memorandum of Sales to both parties respective conveyancing solicitors.

Location

Similar Properties