UNDEROFFER
UNDEROFFER
UNDEROFFER
UNDEROFFER
UNDEROFFER
UNDEROFFER
UNDEROFFER
UNDEROFFER
UNDEROFFER
UNDEROFFER
UNDEROFFER
UNDEROFFER
UNDEROFFER
UNDEROFFER
UNDEROFFER
UNDEROFFER
UNDEROFFER
UNDEROFFER
UNDEROFFER
UNDEROFFER
UNDEROFFER
UNDEROFFER
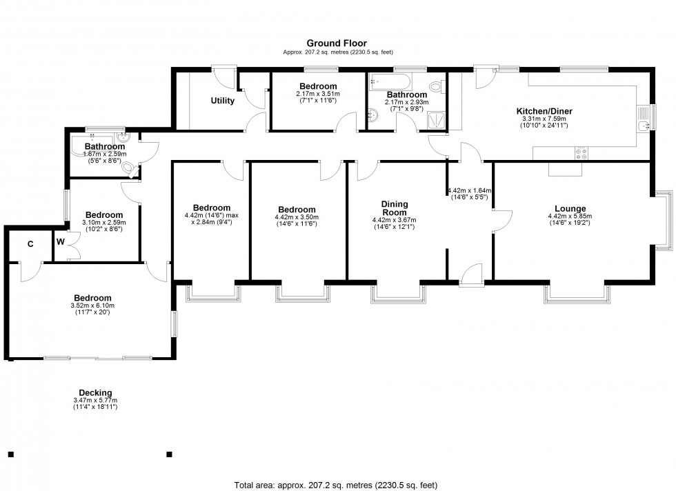
Floorplan for Shipham, Somerset
EPC Graph for Shipham, Somerset

5 Bedrooms Detached Bungalow - Under Offer Cuck Hill, Shipham, Somerset
Guide Price £845,000

5 2 3

An outstandingly spacious and versatile home enjoying breathtaking panoramic views across its grounds and the surrounding countryside, stretching over the Bristol Channel towards the Welsh coastline and the Brecon Beacons. The property further benefits from outbuildings and an adjoining paddock....

Key Features

  • 4/5 Bedrooms
  • 3 reception rooms
  • 2 bathrooms
  • Outbuildings/Stabling
  • Gardens and Paddock 1.5 acres approx.
  • Potential for secondary accommodation
  • Private driveway
  • EPC C rating
About the property.

Believed to date from around 1930, the property has been thoughtfully extended in recent years to create a highly flexible home, with potential for an annexe. Its elevated position ensures attractive views from every window.

About the inside.

The entrance hall has been opened up to incorporate the first of three reception rooms, while opposite lies the sitting room, featuring a log-burning stove. Both rooms enjoy square bay windows and stunning outlooks across the Channel towards the Welsh coast.

The kitchen/breakfast room is fitted with a modern range of bespoke units, complemented by a five-ring gas hob and eye-level double oven. A stable door opens onto the rear garden, and the room connects to a central hall, from which three further bedrooms, a family bathroom, and a utility room are accessed.

At the far end of the property is a spacious reception room, currently used as a fifth bedroom, with bi-fold doors opening onto a decked terrace that makes the most of the far-reaching views. Adjoining this is a double bedroom and bathroom with jacuzzi bath, offering excellent potential to create a generous self-contained annexe or private wing.

Additionally, there is a substantial attic space with impressive ceiling height, offering scope for conversion into further accommodation, subject to the necessary consents.

About the outside.

To the front of the property are the principal gardens, enjoying outstanding panoramic views. A sweeping driveway approaches the house, with steps leading down to an extensive lawn bordered by mature shrubs, a selection of ornamental and fruit trees, and a fishpond. A young orchard is situated to one side of the property.

Beyond the lawn, there is a garage and stabling positioned beside the entrance to the adjoining paddock. In total, the property occupies approximately 1.5 acres.

About the area.

Shipham offers a range of excellent local amenities, including primary and middle schools, a village hall, village stores and public house plus the historic Church of St Leonard. A number of highly regarded independent and state schools are also within easy reach, including Sidcot School, Wells Cathedral School, Millfield, and Churchill and Kings of Wessex School.

The nearby villages of Winscombe & Cheddar, provide further amenities, while the city of Bristol, approximately 15 miles away, offers a wide range of shopping, dining, and leisure opportunities.

For those needing to commute, Yatton railway station (around 6.9 miles distant) provides direct services to Bristol Temple Meads, along with fast connections to London Paddington and other major cities.

Useful information.

Postcode - BS25 1RB
Local Authority - North Somerset Council
Council Tax - Band F
Energy Performance Certificate Rating – C
Utilities – Mains Electric, Mains Gas, Mains Water, Private Drainage
Tenure - Freehold
Viewings - Strictly by appointment with the Vendors agent Killens

Location