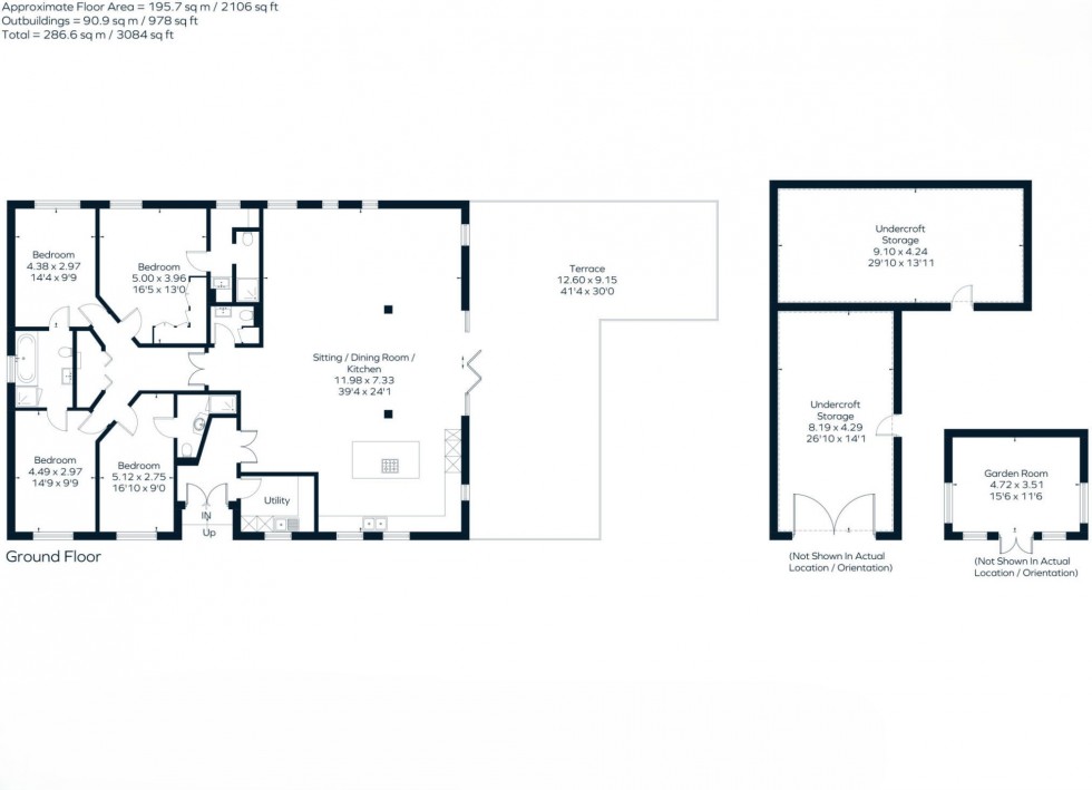
Floorplan for Pensford, Bristol, Bath And North East Somerset
EPC Graph for Pensford, Bristol, Bath And North East Somerset

4 Bedrooms Detached House - For Sale Belluton, Pensford, Bristol
Offers In Region Of £875,000

4 3 1

A Striking Contemporary Barn Conversion with Panoramic Views Offered with No Onward Chain.

Key Features

  • An exceptional detached barn conversion
  • Impressive specification
  • Large elevated deck with breathtaking rural views
  • Four spacious double bedrooms (two en-suite)
  • Beautifully landscaped garden
  • No onward chain
About the property:

An exceptional detached barn conversion finished to an impressive specification, blending modern luxury with countryside charm. This light-filled home boasts underfloor heating, triple glazing, and an eco-friendly air source heat pump. The expansive open-plan kitchen/living area opens seamlessly onto a large elevated deck with breathtaking rural views perfect for entertaining or quiet relaxation. With four spacious double bedrooms (two en-suite), a beautifully landscaped garden, and a stylish summerhouse/studio, this property offers both elegance and practicality in equal measure.

About the inside:

Expertly crafted with attention to detail throughout, Belluton Barn offers a contemporary layout with a warm and inviting feel. The heart of the home is the vast open-plan living/kitchen space, featuring timber flooring, high ceilings, and tri-fold doors that open directly onto the deck, creating a stunning indoor-outdoor flow.
The sleek modern kitchen is both stylish and functional, enhanced by a separate utility room and spacious entrance hall. The principal suite includes built-in wardrobes and a luxurious en-suite. Two further double bedrooms are linked by a smart Jack and Jill bathroom, while a fourth bedroom enjoys its own en-suite, ideal for guests. A cloakroom and ample storage further add to the home’s convenience.

About the outside:

Approached via a sweeping gravel driveway framed by a manicured lawn and hedging, the property offers ample parking and discreet storage beneath the deck. The elevated deck, finished with a contemporary glass balustrade, takes full advantage of the stunning countryside views and sunny aspect. To the side, a private enclosed lawn leads to a timber summerhouse, ideal as a home office or studio.

About the area

The Barn is situated in the rural hamlet of Belluton between Chew Magna and Pensford, some 6.3 miles to Bristol City Centre with road and rail networks providing good access to London, whilst Bath which lies to the east is approximately 12.8 miles away and offers many cultural experiences, plus the nearest train station is in Keynsham 4.8 miles away. For international travel, Bristol Airport has an extensive schedule of flights to many European destinations and is circa 7.3 miles distant. The nearby villages of Chew Magna and Compton Dando meet all the day to day needs with a variety of shops, public houses and schools. Bristol and Bath have a myriad of independent co-education, boys and girls schools in addition to Wells Cathedral and Millfield. There is sailing on the Chew Valley Lake and many excellent countryside walks in the Mendips on the doorstep.

Additional Information

Services: The house is connected to mains water and electricity. Heating is provided by an oil-fired boiler and underfloor heating throughout. Drainage is via a new private septic tank.
Local Authority: Bath & North East Somerset
Council Tax: Band F

Location

Similar Properties