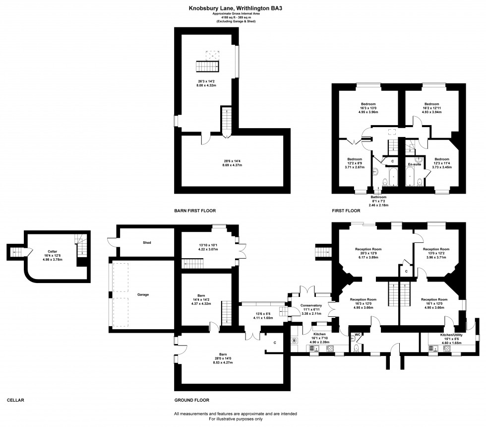
Floorplan for Radstock, Somerset
EPC Graph for Radstock, Somerset

4 Bedrooms Detached House - For Sale Knobsbury Lane, Radstock, Somerset
Asking Price £800,000

4

Glebe Cottage is a substantial and characterful detached family home, set within established grounds extending to approximately three acres. Enjoying a peaceful and private setting, the property benefits from delightful views across its own gardens and adjoining land. The principal residence...

Key Features

  • Four bedroom house
  • Adjoining barns and outbuildings
  • Two fenced paddocks - total plot 3.92 Acres.
About the Property.

This well-proportioned home offers four double bedrooms and four spacious reception rooms, all featuring charming corner fireplaces. The layout provides excellent flexibility, further complemented by two kitchens, a cellar, conservatory, and a double garage - presenting an ideal opportunity to create a self-contained annexe if desired.

The adjoining two-storey stone barn has been partially converted and previously utilised as a studio and exhibition space. It now offers exciting scope for a variety of uses, including further residential or commercial development (subject to planning).

The grounds are a particular highlight, comprising lawn, a pond, a productive vegetable garden, and a range of useful outbuildings and sheds. Beyond the garden lie two adjoining fields, enclosed by mature hedging and trees.

About the Inside.

A welcoming and spacious entrance hall leads to the first of four reception rooms, each enjoying abundant natural light, high ceilings, and period features including original doors and fireplaces. The property has been thoughtfully extended to the front, resting a central entrance hall flanked by two kitchens - one providing direct access to the vegetable garden, and the other opening into the conservatory. Two staircases rise to the first floor, where there are four generously sized double bedrooms, including one with en-suite facilities, alongside a family bathroom. The layout lends itself well to the creation of a self-contained annexe.

The conservatory provides a bright space with direct access to the garden, cellar, and adjoining barn.

Access via an atrium connected to the conservatory, the impressive L-shaped stone barn offers highly versatile accommodation. The ground floor includes a large open exhibition space with a separate glazed entrance, a storeroom with stairs to the first floor, and an additional room with French doors opening onto the garden, along with a second staircase. Upstairs, two substantial rooms with vaulted ceilings provide further adaptable space, one enjoying a large window overlooking the gardens.

About the Outside.

A long and private driveway leads past the front of the house and opens up in front of a double garage, providing ample parking and access. The gardens are a stand-out feature, with extensive lawns, a large pond, mature trees, and far-reaching views over the adjoining land. A once productive vegetable garden includes a greenhouse and storage sheds.

Beyond, a small, wooded area leads to two, level, interconnected fields - ideal for equestrian use or those seeking a rural lifestyle.

About the Area.

The property is conveniently positioned within walking distance of Writhlington’ s local amenities and a short drive from the town centre of Radstock, which offers a good range of local amenities including schools, doctors’ surgeries, a leisure centre and a selection of shops and supermarkets. Trinity Church Primary and Writhlington Secondary and Sixth Form Schools are both within walking distance, while Wells Cathedral and All Hallows independent schools are only a short drive away.

Attractive countryside walks and cycle routes can be enjoyed nearby, including the popular Greenway path linking Radstock and Midsomer Norton. The restored Somerset & Dorset Railway at Midsomer Norton provides a touch of local heritage. Radstock offers an easy commute to the cities of Bath and Bristol, with the cathedral city of Wells and the market town of Frome within a short drive.

Useful Information.

Postcode - BA3 5SJ
Local Authority - Somerset Council
Council Tax - Band C
Energy Performance Certificate Rating - E
Tenure - Freehold
Viewings - Strictly by appointment with the Vendors agent Killens
Terms - Sale subject to an overage clause

Location

Similar Properties